|
中古マンション 宝塚市光明町 1,998万円
| 名称 |
宝塚パークハイツ |
| 所在地 |
宝塚市光明町 |
| 交通 |
阪急今津線小林駅歩13分 |
| 価格 |
1,998万円 |
| 管理費 |
7,530円 |
| 積立金 |
11,970円 |
| 専有面積 |
70.39u |
| バル面積 |
10.27u |
| 分譲会社 |
三井農林 |
| 施工会社 |
長谷工 |
| 管理会社 |
長谷工コミュニティ |
| 管理形態 |
全部委託 |
| 管理人 |
日勤 |
| 総戸数 |
116戸 |
| 築年月 |
1984/02 (築42年) |
| 構造 |
鉄骨鉄筋コンクリート造 |
| 所在階 |
9階建3階 |
| 採光方向 |
西向 |
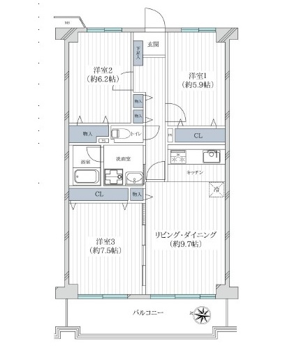
間取り |
3LDK |
| 駐車場 |
空無 |
| 土地権利 |
所有権 |
| 現況 |
空家 |
| 引渡時期 |
相談 |
| 小学校区 |
光明小学校 |
| 中学校区 |
宝塚第一中学校 |
| 条件・設備 |
エレベータ/フローリング/システムキッチン/温水便座付トイレ/浴室乾燥機/洗髪洗面化粧台/ |
| ポイント! |
令和?7年9月リフォーム完成 |
| 更新日 |
2026/02/03 |
| 物件番号 |
No.1058569 |
| 取引態様 |
仲介  |
|