物件番号 種目 更新日 |
所在地 |
交通 |
価格 管理費 積立金 |
専有面積 バル面積 |
No.1058901 中古マンション 2026/03/14 |
宝塚市逆瀬台2丁目 逆瀬川パークマンション |
阪急今津線 逆瀬川駅 バス7分 停歩2分 |
700万円 6,450円 11,300円 |
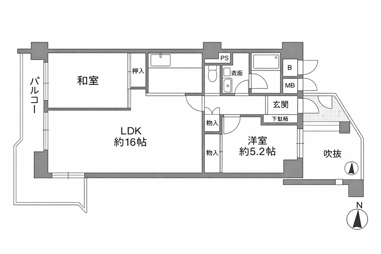
62.7u 12.7u |
| ※画像をクリックすると拡大表示します※ |
 |
 |
| 分譲会社 |
三井不動産 |
施工会社 |
藤木工務店 |
| 管理会社 |
三井不動産レジデンシャルサービス |
管理形態・管理人 |
全部委託・日勤 |
| 総戸数 |
151戸 |
築年月 |
1980/08 (築45年) |
| 構造 |
SRC造12階建 |
所在階 |
6階部分 |
| 採光方向 |
南東向 |
間取り |
2LDK |
| 駐車場 |
空無 |
土地権利 |
所有権 |
| 現況 |
空家 |
引渡時期 |
相談 |
小学校区 |
逆瀬台小学校 |
中学校区 |
光ガ丘中学校 |
| 条件・設備 |
エレベータ/ |
| ここがポイント! |
- |
| 取引態様 |
仲介 |
※仲介物件は、ご成約時に仲介手数料とその消費税が必要となります。 ※定期的に掲載情報を更新しておりますが、お問い合わせいただいた際に商談中、売却済、条件変更となっている場合があります。 あらかじめご了承ください。 ※掲載情報と現況に相違がある場合は、現況を優先します。 ※交通機関からの所要時間は、当該物件の分譲時のパンフレットに記載された時間、または地図上での道路距離に基づいて計算した時間を記載しています。 |
|
|
※物件の位置を正確に表示できない場合があります。 ※物件詳細の情報量により、地図表示に時間がかかる場合があります。 ※地図表示はGoogle社より提供を受けていますので、地図内容に責任は負いません。 |
|