物件番号 種目 更新日 |
所在地 |
交通 |
価格 管理費 積立金 |
専有面積 バル面積 |
No.1058514 中古マンション 2026/03/08 |
宝塚市山本丸橋3丁目 パレ宝塚プルミエール |
阪急宝塚線 山本駅 歩13分 |
2,980万円 22,230円 16,450円 |
111.16u 20.01u |
| ※画像をクリックすると拡大表示します※ |
 |
 |
| 分譲会社 |
ハイエリア |
施工会社 |
長谷工コーポレーション |
| 管理会社 |
晴耕雨読 |
管理形態・管理人 |
全部委託・日勤 |
| 総戸数 |
97戸 |
築年月 |
1997/03 (築29年) |
| 構造 |
RC造9階建 |
所在階 |
1階部分 |
| 採光方向 |
南西向 |
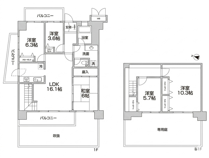
間取り |
5LDK |
| 駐車場 |
空有 月額3700円 |
土地権利 |
所有権 |
| 現況 |
居住中 |
引渡時期 |
相談 |
小学校区 |
長尾南小学校 |
中学校区 |
長尾中学校 |
| 条件・設備 |
角物件/エレベータ/オートロック/メゾネット/システムキッチン/温水便座付トイレ/駐車場/TVインターホン/宅配BOX/専用庭/デザイナーズ/ |
| ここがポイント! |
3方角住戸の開放感。100u超のゆとりと駐車場権利を享受する |
| 取引態様 |
仲介 |
※仲介物件は、ご成約時に仲介手数料とその消費税が必要となります。 ※定期的に掲載情報を更新しておりますが、お問い合わせいただいた際に商談中、売却済、条件変更となっている場合があります。 あらかじめご了承ください。 ※掲載情報と現況に相違がある場合は、現況を優先します。 ※交通機関からの所要時間は、当該物件の分譲時のパンフレットに記載された時間、または地図上での道路距離に基づいて計算した時間を記載しています。 |
|
|
※物件の位置を正確に表示できない場合があります。 ※物件詳細の情報量により、地図表示に時間がかかる場合があります。 ※地図表示はGoogle社より提供を受けていますので、地図内容に責任は負いません。 |
|